Before the introduction of magnetic-coupled systems, pumps were directly driven with the motor shaft coupled to the pump shaft, which required a seal. Early generation pump seals consisted of packing rings, which could be squeezed around the shaft against the housing. These rings, constructed of various fibrous materials, would prevent liquid from leaking out of the pump or air from being sucked into the pump. The higher the pressure the pump generated the greater the chance that liquid would leak around the packing. On the other hand, when the pump was running wide open, there was a negative pressure at the seal and air could be introduced, possibly causing a problem with the liquid being pumped or making the pump difficult to prime. Various improvements, such as adding water into a lantern ring located between the packing rings, helped prevent crystallization or air from being introduced into the pump. However, these improvements could not solve the inherent problems associated with packing rings — i.e., there is a certain amount of skill needed for installation and they require considerable attention to ensure proper operation.
Because of its drawbacks the use of packing eventually gave way to mechanical seals, which are easier to install and can run for long periods of time with little or no service. Generally speaking, mechanical seals do not require any adjustment when located in the pump cavity. The impeller is fastened against the spring assembly, which, in turn, sets the space between the two mating parts of the seal so the distance between them is lubricated by the liquid being pumped. Additionally, mechanical seals are available in many different designs and configurations to meet a variety of sealing applications.
Magnetic-coupled pumps were introduced approximately 45-50 years ago. Since the pump shaft of magnetic-coupled systems does not penetrate the pump cavity, no sealing device is required. As such, magnetic-coupled systems are oft referred to as "leak-proof" and are considered by some the "salvation" for pumping applications in general. However, magnetic-coupled pumps are not an end-all-be-all solution. They suffer problems when working with liquids containing abrasives, with liquids containing ferrous metal particulates, and with liquids that crystallize when the pump is not in operation. These problems can damage the liner between the magnetic couplings and, in turn, cause leakage. In addition, most magnetic-coupled pumps are subject to the same dry-run and cavitation problems as single-mechanical seal pumps. Finally, the size of magnetic-coupled pumps is limited by the strength of the magnetic coupling.
READ ALSO: Wet Seal to Dry Seal Conversion—Considering the benefits of retrofitting your compressor
Single-mechanical seal
The most common seal configuration is to mount a single seal inside the pump cavity (Figure 1). Such a seal is chosen because it is reasonably leak-free. However, when abrasive particles from the liquid get between the seal faces, liquid from the pump under pressure will start to ooze, ultimately resulting in dripping. The single seal is also vulnerable to damage caused by cavitation, which, in turn, causes excessive vibration. The seal surfaces may suffer chemical attack and become roughened, which speeds up the abrasion process and shortens the life of the seal so that leakage will occur prematurely. And, finally, with the seal inside the pump chamber, seal components (often metal) are subject to attack from the pumped fluid.
With pumps constructed of engineered thermoplastics where nonmetallic solution contact is required, it is necessary to relocate the seal components outside the pump housing in the back of the support plate. The seal consists of a stationary ceramic face and cup in contact with the liquid, which also lubricates the face of the carbon and bellows that rotates with the shaft. The seal in this position does not have any metal in contact with the liquid since the spring used to maintain contact of the seal surfaces is external (Figure 2).
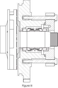
Double-mechanical seal
Regardless of the configuration, a single-mechanical seal will eventually leak and possibly damage the motor, corrode the surrounding area, or create a waste treatment problem. Therefore, it may be worthwhile to consider the use of a pump with a mechanical seal that includes another seal as a backup. This double-mechanical seal configuration consists of two independent seals mounted within a seal chamber outside the pump, which is flushed with an independent water supply at a flowrate of approximately two to four gallons per hour (minimum) and a pressure slightly higher than the maximum expected operating pressure of the pumped solution (Figure 3). This water may be recirculated for conservation purposes provided cooling of same is accomplished when necessary.
The use of a double-mechanical seal allows the operator to monitor the seal water, looking for a discoloration to indicate that the primary seal has started to leak. This seal water would have to be disposed of, but, unlike the single seal, the collected liquid could be disposed of in a suitable manner. Also, the double seal design permits the use of a less exotic inboard seal material so when replacement is necessary it is less expensive.
It would be wise to use a double-mechanical seal when hazardous liquids are being pumped where it would be impossible to contain leakage in a suitable way with a single-mechanical seal. As such, the liquid being used to lubricate the double seal could be collected and stored in a containment vessel for suitable disposal.
Of course, a double-seal pump requiring water for lubricating may fail if, for some reason, water is not available. This could be the result of an operator inadvertently shutting off the flow of water, or the small seal water tubing getting blocked from calcium, iron, or other solids. To prevent such situations, a small inline filter could be employed or a trigger could be enabled to turn off the pump motor when the flow of cooling water is reduced below the two to four GPH requirement. Other types of pump protection are available, such as pressure-activated systems or systems that use motor output to indicate a closed inlet or outlet valve, line blockage, or dry-run condition.
The use of double-mechanical seals with flushing solutions and suitable flow-activated pump protection have been known to operate for years on critical applications that would otherwise damage single-seal pumps within weeks, days, or even only a few minutes. The elimination of troublesome downtime, service work, solution loss, or possible loss of a hazardous material are all reasons for using a double seal. Should there be occasions when a source of water is not available, then a self-contained system that includes a pump, a reservoir of liquid, and a filter could be employed to recirculate the water as needed (Figure 4). The size of the chamber containing the liquid would need to be large enough to handle the heat input from the product being pumped or the energy created at the seal faces themselves.
Minimizing seal failure
Mechanical seals can become worn or damaged for many reasons. The pumped liquid may contain abrasive particles and may crystallize due to evaporation at the outer edge of the mechanical seal faces. Seal failure could also be the result of cavitation where vibration causes excessive wear. And, finally, dry running will cause the hard and soft mating surfaces of the seal to become hot to the point of scorching the area around the seal until the seal components themselves fail.
A double seal minimizes the possibility of seal failure. A lubricant, such as water flowing between the seals makes certain the seal itself is never allowed to run dry, and it also prevents any liquid containing salts from drying and causing abrasive wear of the seal faces. One of the many benefits of the double-seal pump is the continuous cooling of the flush allows the pump to run dry without damage.
The amount of water required to run a double-mechanical seal is extremely low, perhaps only two to four gallons per hour. This, of course, depends upon the size of the pump and the operating temperature of the liquid. In addition, the lubricating liquid can be recirculated by using a container large enough to handle the increase in temperature from the recirculating pump or the pump the seal is protecting. Further, there is, generally speaking, virtually no chance of the lubricating liquid entering the pump liquid because the lubricating liquid counteracts the pressure from the pump at the primary seal face. For instance, a pump that normally generates 20 PSI could employ seal water of 10, 20, or even 30 PSI and operate successfully without the lubricating water reaching the pumped fluid.
Considering lifetime cost
A double seal should be considered as an alternative for applications where a mechanical seal is recommended for a given process. When considering a double seal it is important to keep in mind that lower cost components may be substituted. For example, EPDM (ethylene propylene) will suffice in place of other more exotic synthetic materials as a choice for the cup, and it may in fact react better to temperature changes, as other elastomers aren’t as resilient and possess what is known as cold flow properties. This means that once they are compressed they do not return readily to their original shape.
Another advantage of a double-seal assembly is the water lubrication, which has a neutralizing effect on a salt or abrasive liquid being pumped. This feature also allows for the selection of lower cost components such as carbon and ceramic vs. denser carbon and silicone carbide.
Finally, a double seal protects the motor and the area under the pump from damaging attack from the corrosive liquid being pumped. It is like employing a containment container, since any possible leakage is in a collectible system for easy disposal.
Today the magnetic-coupled pump is being touted for many chemical applications, and for clean liquids it is a very good solution. However, magnetic-coupled pumps can be prone to failure in applications where dry-run is a concern or the fluid being pumped contains particles.
The capital cost of buying and installing a pump is only 5 percent of the lifetime cost of using the pump. Maintenance and repair accounts for a far higher percentage of the lifetime cost — as much as 20 percent. Therefore, investing up front in a double-mechanical seal pump with dry-stop protection on the flush supply, or even with a water reservoir to supply the flushing action, will result in a pump that will truly minimize downtime, as it requires no ongoing repairs due to dry-run or abrasive damage.
Jack H. Berg founded Service Filtration Corporation (SERFILCO) in 1961 after 10 years with a general industrial filtration manufacturer. The manufacturing division of SERFILCO was formed in 1962, specializing in pump and filter manufacture. Mr. Berg is an active member of AESF, former director of MFSA, and a member of NAMF. He has authored many articles and speeches, including "The Evolution of Filtration for Plating," "How to Select the Right Pump for Plating," "Filtration and Purification of Solutions used in Electronic Manufacturing," "Filter: The Best Solution," and "Filtration and Purification of Plating Solutions" (Metal Finishing Guidebook). Mr. Berg can be reached at [email protected] or 847-509-2900.




